汽车制造
产品概述
product description
查看大图
HSV-130U系列总线式交流伺服驱动单元
伺服驱动HSV-130U系列总线式交流伺服驱动单元为380V驱动单元,包括电源模块,伺服模块和主轴模块,采用模块化结构设计,电源模块与轴模块分开。
使用说明下载产品特点
Features1,结构紧凑,节约电柜体积。
2,搭配超级电容模块,意外断电情况下,防止重力轴下落,实现刀具回退。
3,驱动模块之间存在能量交换,具有节能效果。
产品参数
Product parameters模块规格 |
输入电压(V) |
开关频率 (kHz) |
输出电流(A) |
短时最大电流 (A) |
540V DC |
10kHz |
2×9.0 |
2×18.0 |
|
HSV-130U-D1-5.5 |
540V DC |
8kHz |
16 |
28 |
16kHz |
9.6 |
|||
HSV-130U-D1-7.5 |
540V DC |
8kHz |
24 |
42 |
16kHz |
14 |
HSV-130U-D系列伺服模块驱动规格及基本参数说明
模块型号 |
输入电压(V) |
开关频率 (kHz) |
输出电流(A) |
短时最大电流 (A) |
HSV-130U-S-5.5 |
540V DC |
8kHz |
16 |
28 |
16kHz |
9.6 |
|||
HSV-130U-S-7.5 |
540V DC |
8kHz |
24 |
42 |
16kHz |
14 |
HSV-130U-S系列主轴模块驱动规格及基本参数说明
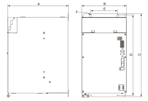
产品尺寸
Product Size
产品型号 |
A |
B |
C |
D |
E |
F |
|
HSV-130U-PS-22 HSV-130U-D2-3 HSV-130U-D1-5.5 HSV-130U-S-5.5 |
200 |
80 |
256 |
244 |
48 |
φ6 |
|
HSV-130U- D1-7.5 HSV-130U-S-7.5 |
200 |
100 |
256 |
244 |
48 |
φ6 |